Goedlopend horecabedrijf op een hoeklocatie met terras
Café de With
Ligging op de hoek van de Witte de With en de van Kinsbergenstraat, in het populaire stadsdeel in de buurt de Baarsjes tegenover nieuwbouwcomplex de Wending.Stadsdeel West is het met haar 150.000 inwoners het meest drukke stadsdeel van de gemeente Amsterdam.
Indeling
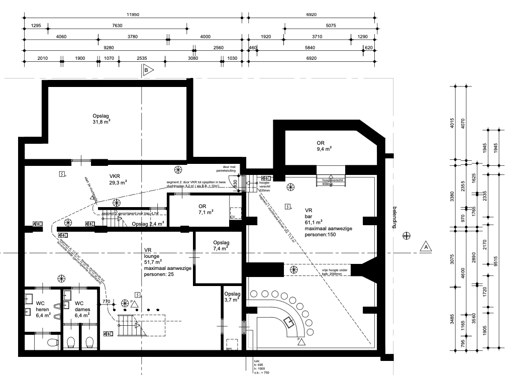
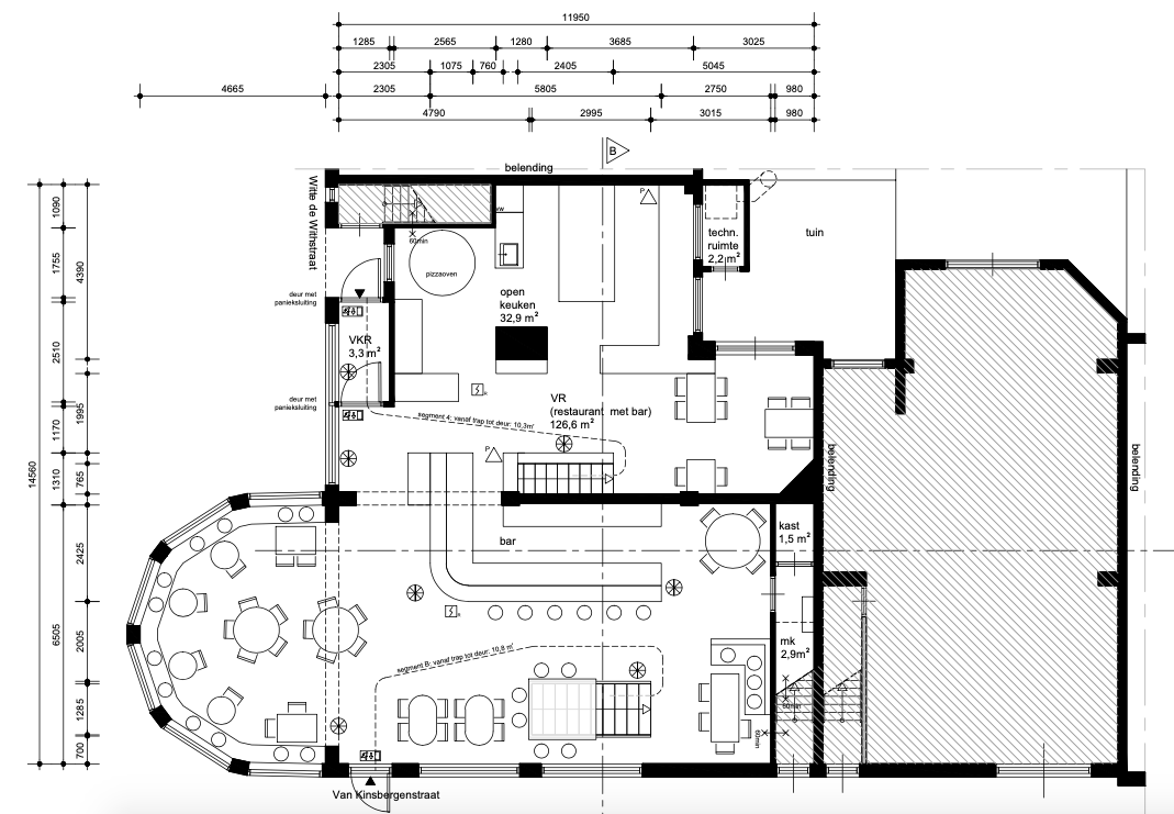
De zaak is gelegen op een hoeklocatie met rondom ramen die voor een fijne lichte zaak zorgen en een goed uitzicht op het tegenover gelegen plein geven. Bij binnenkomst links de grote en ruim uitgevoerde keuken, met ruimte voor een chefs table. Aan de achterkant van de keuken is een buitenplaats voor opslag van emballage, koelingen en containers. Aan de rechterkant het restaurant/cafédeel met grote bar en zitgelegenheid.Het souterrain is opgedeeld in kinderspeelruimte met toiletgroepen, washok en ruimte voor de bierkoeling. Door de gang heen is er nog een droogopslag voor de keuken, een ruime CV ruimte en de club.
Rondom het pand het bijzonder sfeervolle terras met ruim 80 zitplaatsen.
Objectomschrijving
In de ochtend een goede kop koffie ontbijt of iets zoets. s’ Middags lekker lunchen, door naar de vrijdagmiddagborrel voor een goed glas wijn en een lekker biertje en in de avond lekker eten. Later op de avond een romantische date of uit je dak gaan in de cocktailbar in het souterrain, en in de zomer tot laat op de avond in het zonnetje op het terras je favoriete drankje drinken.
Veel is hier mogelijk.
Huidige openingstijden.
Maandag en dinsdag gesloten
Woensdag en donderdag van 17:00 – 23:00 uur
Vrijdag, zaterdag en zondag van 17:00 – 03:00 uur.
Bereikbaarheid
Prima, zowel met de auto fiets op openbaar vervoer.
Parkeren: Betaald parkeren in de omgeving.
Vloeroppervlak/Capaciteit:
Oppervlakte: Totaal ca 350 m2!!
Begane grond: 176 m2.
Kelder: 210 m2.
Aantal zitplaatsen:
Begane grond 100
Bar 25
Souterrain 90
Terras 80
Reden van verkoop
Persoonlijke omstandigheden.
Bijzonderheden
- Goede locatie, aan het plein op het westen, met veel en tot laat zon op het grote terras.
- Uitgebreide exploitatie mogelijkheden met mogelijkheid voor een (hidden) cocktailbar in het souterrain.
- Veel zitplaatsen, zowel binnen als buiten.
- Box in Box constructie in het restaurant.
- Eerste exploitant, al het installatiewerk en apparatuur is nieuw.
Installaties
Stroom: Voldoende groepen met krachtstroom, 3 X 80 ampère.
Airconditioning: Koeling en verwarming middels W.T.W. (warmte terugwinning)
Warm water: Combi Ketel compact via verhuurder.
Alarminstallatie: ja en doorverbonden naar meldkamer.
Brandalarm: ja en doorverbonden naar meldkamer.
Blusapparatuur: brandhaspel (4 stuks).
Luchtbehandeling: ja, zowel aan als afvoer.
Vetput: is aanwezig.
Juridische informatie
Rechtsvorm: Besloten Vennootschap.
Transactievorm: Activa/Passiva, alleen de activa worden verkocht.
Drank en Horecawet: Afgegeven begin 2024.
Brandveiligheid: In orde.
Leveranciersverplichtingen: Bruikleen Gulpener, voor de rest vrij.
Inrichtingseisen: Volgens opgave van de opdrachtgever voldoet de zaak aan de eisen vanuit de Drank & Horecawet.
Personeel: Er zijn geen medewerkers die moeten worden overgenomen
Financiële informatie
Vraagprijs: € 185.000,=
Betreft bedrijfsinrichting, inventaris, handels/domeinnaam en de goodwill.
Huurprijs: ca. € 42.500,- per jaar.
Rechtsvorm: Besloten Vennootschap.
Transactievorm: Activa/Passiva, alleen de activa worden verkocht.
Drank en Horecawet: Afgegeven begin 2024.
Brandveiligheid: In orde.
Leveranciersverplichtingen: Bruikleen Gulpener, voor de rest vrij.
Inrichtingseisen: Volgens opgave van de opdrachtgever voldoet de zaak aan de eisen vanuit de Drank & Horecawet.
Personeel: Er zijn geen medewerkers die moeten worden overgenomen
Huurcontract: 5+5 ingangsdatum 1 januari 2019 verhuurder is Ymere.
Servicekosten ca. € 50,- per maand.
Aanvaarding: In overleg.
Voorbehoud: Gunning verkoper.
Dit object wordt in samenwerking met For Value aangeboden
CONTACTPERSONEN
Horeca Advies Partners
Johan Jonk
For Value
Matthias Jonkman
Kenmerken
| Huurprijs Registergoed | € 42.500,= per jaar |
| Vraagprijs Exploitatie | € 185.000,= |
| Type | Restaurant |
| Bestemming | Horeca cat 3 |
| Oppervlakte horeca | 350m2 |
| Bouw | Begane grond en kelder |
| Ligging | Amsterdam West |
Direct contact opnemen?
Heeft u interesse in dit object?
Neem contact met ons op om een afspraak te plannen. U kunt ons bereiken op +31 (0)85 – 760 02 29 of info@horecaadviespartners.nl of klik op de oranje button.




















